Leave a Message

By providing your contact information to Gasper Monteer Realty Group, your personal information will be processed in accordance with Gasper Monteer Realty Group's Privacy Policy. By checking the box(es) below, you consent to receive communications regarding your real estate inquiries and related marketing and promotional updates in the manner selected by you. For SMS text messages, message frequency varies. Message and data rates may apply. You may opt out of receiving further communications from Gasper Monteer Realty Group at any time. To opt out of receiving SMS text messages, reply STOP to unsubscribe.

Thank you for your message. We will be in touch with you shortly.

Leisure World

Leisure World is a nationally recognized gated community of active 55-plus residents located in sunny, breezy Seal Beach, California.
main

About the Community

Leisure World in Seal Beach is a premier 55+ gated community known for its resort-style amenities, security, and active lifestyle. Located just minutes from the beach, this vibrant community offers a peaceful yet engaging environment for retirees and active seniors.

Real Estate in Leisure World

Housing options include co-ops and condominiums, many of which have been updated with modern features. Residents enjoy well-maintained landscapes, tree-lined streets, and a variety of floor plans. The community provides a safe, social, and low-maintenance lifestyle, making it an attractive choice for retirees.

Things to Do & Amenities

Leisure World boasts an array of amenities, including a 9-hole golf course, swimming pools, fitness centers, six clubhouses, and over 200 clubs and organizations. There are walking trails, gardening areas, shuffleboard courts, and an amphitheater for live performances. A free shuttle service makes it easy to access nearby shopping, medical facilities, and recreational spots.

main

Dining & Restaurants

While Leisure World has its own on-site dining options, residents are just a short drive from excellent restaurants in Seal Beach. Popular spots include The Hangout, known for its oceanfront views and comfort food, and Finbars Italian Kitchen, offering classic Italian dishes. The Main Street area of Seal Beach has charming cafes, bakeries, and seafood restaurants, perfect for a relaxed dining experience.

Local Events & Entertainment

Leisure World hosts a variety of events, from concerts at the outdoor amphitheater to seasonal festivals, craft fairs, and social gatherings. The nearby Seal Beach Pier and Main Street district offer additional entertainment, including art festivals, farmers markets, and live music venues. The Seal Beach Car Show and Christmas Parade are local favorites.

Why Choose Leisure World?

With its prime location, extensive amenities, and strong sense of community, Leisure World in Seal Beach offers an ideal retirement destination. Whether you prefer an active lifestyle filled with clubs and sports or a more relaxed beachside retreat, Leisure World provides a perfect blend of comfort, convenience, and coastal charm.

Leisure World Demographics

8,695

Total Population

75 Years

Median Age

High

Population Density

$48,795

Average Individual Income

Leisure World Eligibility Calculator

Eligibility Calculator

main

About the Community

Spread over 531 park-like acres, Leisure World Seal Beach (LWSB) offers people aged 55 and older condos and co-ops nestled in wide green spaces for resort-style living.

The community has a 9-hole, 3-par golf course, swimming facilities, community gardens, specialty arts and crafts rooms, fitness and exercise rooms, sports courts, five clubhouses, free bus service, an on-site health care center and a fully staffed 24-hour security service.

There are more than 160 clubs, plus sponsored events and excursions to area landmarks, a free summer concert series in the Amphitheater and a host of other activities specially designed to keep residents socially, mentally, and physically active.

Leisure World Seal Beach is a sheltered oasis for seniors looking for a busy and satisfying life.

main

Real Estate in Leisure World

Leisure World Seal Beach offers some of the most desirable retirement real estate in Southern California. Housing options include beautifully maintained co-ops and condominiums, many thoughtfully upgraded with modern finishes and open floor plans. Residents enjoy lush, park-like surroundings, peaceful tree-lined streets, and a variety of home styles designed for comfort and convenience. The community’s secure environment and low-maintenance lifestyle make it the perfect place to relax and thrive in your retirement years.

Dining, Restaurants & Shopping

Leisure World is within minutes of Seal Beach’s best restaurants—like The Hangout, featuring oceanfront views and classic comfort food, or Finbars Italian Kitchen, known for its authentic flavors. The nearby Main Street district offers cozy cafes, bakeries, and fresh seafood spots, perfect for casual lunches or elegant dinners by the coast. In any direction we have shopping and grocery stores like Target, HomeGoods,  Trader Joe's, Whole Foods, Ralphs and Vons. 

Local Events & Entertainment

Life at Leisure World is vibrant and social, with year-round events that bring residents together. From outdoor concerts and seasonal festivals to art fairs and craft shows, there’s always something happening. Just outside the gates, the Seal Beach Pier and Main Street district host popular events such as the Seal Beach Car Show and Christmas Parade—offering a true taste of coastal community living.

Why Choose Leisure World Seal Beach?

Leisure World isn’t just a place to live—it’s a lifestyle. With its unbeatable coastal location, resort-style amenities, and welcoming community spirit, it stands out as Southern California’s best retirement destination. Whether you’re looking for an active social calendar or peaceful days by the beach, Leisure World offers the perfect balance of comfort, connection, and coastal charm.

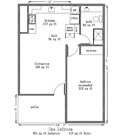
Floorplans

Explore the Community Map

Amenities

Summer Series
The GRF Amphitheater is a 2,500-seat open-air theater that hosts a summer concert series and other special community events.

  • The summer shows are free to residents and their friends and family. Food trucks are available for pre-event dining, and Minibus transportation is available to take people home after the show.
  • Smoking is not permitted in the Amphitheater.
  • The venue opens 90 minutes before showtime.
  • Dancing is allowed only on the two side wing patios flanking the Amphitheater stage.
  • Residents must have GRF photo ID cards in their possession when attending Amphitheater shows.
  • Non-resident guests must be accompanied by an authorized resident.
  • Anticipated popularity of some shows may limit the number of guests a resident may bring.
  • There is no video- or audiotaping of performers.
  • Do not save seats. Amphitheater seating is first-come, first-served.
  • Do not sing along with performers unless asked to do so by the performer on stage.
  • No one is allowed to sit or stand in the aisles.
  • Flags on scooters should be lowered, so everyone can see the stage (see LW Security for assistance).
  • Leave walkers in the aisle.
  • Handicap seating is at street level at the handrails in the middle of the Amphitheater.
  • Do not climb over seats.

Stage
The Amphitheater stage may be reserved by community clubs and organizations in advance at the Recreation office. A Performing Arts Studio and Video Producers Center are located at the top of the Amphitheater and managed by the LW Theater Club and Video Producers Club under the direction of the Recreation Department.

GRF opened its fully remodeled Aquatic Center in 2022. The facility houses a spacious swimming pool and hot spa for use by authorized residents only (guests are not permitted). The amenity includes shower and dressing rooms, umbrella tables, and shaded lounge areas. (ADA-compliant chaise lounges are available). Both the swimming pool and hot spa have aquatic lift chairs for easy access.
 
HOURS OF OPERATION
The Aquatic Center is open from 8:30am - 9:00pm, seven days a week. Users must vacate the pool and hot tub by 8:45pm, however, to allow for closing procedures.

The Bocce Court is located at Clubhouse 2 in Mission Park, adjacent to the multipurpose courts. It is open 7 days a week from 8:00am to 8:00pm For more information contact the Bocce Ball Club, in the Sports section under Clubs and Organizations.
 
HOURS OF OPERATION
8:00am - 8:00pm
 
ADDRESS
Clubhouse 2

Clubs & Organizations

  • Art League
  • Arts & Crafts Guild
  • Ceramics – Clay Crafters
  • Ceramics – Claytime Ceramics
  • Chinese Brush Painting
  • Korean Traditional Painting
  • Lapidary and Jewelry Club
  • Love Weaving Baskets
  • Photographic Arts Club
  • Quilting Bees
  • American Rules Mahjong Club
  • Bridge - Combined Party Bridge
  • Bridge - LW Duplicate Bridge
  • Chess Club
  • Cribbage Club
  • Diamond Poker Club
  • Hold’em and Squeez’em Poker Club
  • Leisure World Pinochle Club
  • LW Bunco Club
  • LW Woman's Club Table Games
  • Mexican Train Dominoes
  • Scrabble
  • Tournament Poker Club
  • Yahtzee Club
  • Abilene Club
  • Ballet Fitness
  • Cabaret Entertainers
  • Dance Fitness
  • Dancers & Mixers
  • Dancing Feet ClubDoo Wop Club (Let the Good Times Roll)
  • Flowering Step Line Dance
  • Fun Exercise Club (Line Dance Club)
  • Grapevine Line Dance Club
  • Gong Club
  • Hui O Hula
  • Joyful Line Dance Club
  • Korean Traditional Dance
  • Leisure Time Dance Club
  • LW Cloggers
  • Saturday Morning Dance Class
  • The Entertainers
  • Theater Club
  • Velvetones Swing Orchestra
  • Zumba Club

(562) 431-6586

General information

(562) 594-4754   

Security office at the Main gate

(562) 430-0534

Leisure World Newspaper

(562) 493-9581

Health Care Center

(562) 795-6216

24- Hour Nurse

(562) 795-6202

Pharmacy

(562) 431-6586 ext. 351

Physical Property

(562) 310-2771

Leisure World Locksmith

(562) 598-2431

Library

(562) 431-6586 ext. 333   

Accounting

 

Let's Work Together